architects + engineers

design | build | operate

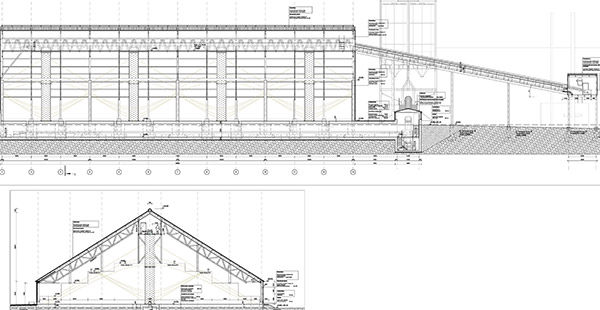
design and project management

We provide design and project management services throughout the whole life cycle of buildings and plants. We accompany our projects from site selection to successful commissioning. We use modern digital tools and BIM methods through all project stages.

The majority of our employees have been working in our company for many years. All our employees are known for their experience, competence and reliability. For all services that are not available to us internally, we work together with carefully selected partners.

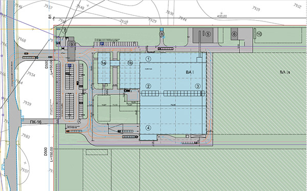
digital as-built documentation

We create the basis for the safe and effective operation of your buildings and plants. We save all operational relevant graphic and alphanumeric data digitally and combine and network them in a digital as-built documentation.

We save the as-built documentation of buildings and plants in a web-based document management system. If as-built documents are missing or incomplete, we create them.

We capture all operational parameters of areas, rooms, doors, systems, aggregates, and components in an object database and create interactive floor layouts and R & I diagrams from any documents. Access the object data base through these interactive plans.

We equip all operational relevant areas, rooms, doors, systems, aggregates and components with ID cards. These ID cards serve as service access points and provide mobile access to all data, documents and events linked with the ID card.

Our solutions are completely web-based. For their use, no software needs to be installed on users' computers or mobile devices.

customers and partners

Our customers and partners include owners, contractors, operators, property managers, maintenance companies and facility managers. With the majority of them we work for many years and have completed lots of successful joint projects. We work international.

projects

contact

Berlin

Schönhauser Allee 43a, 10435 Berlin

your contact in Berlin

Didem Sari
ed.gnireenigne-acc@iras.d

Mainz

Eppichmauergasse 8, 55116 Mainz

your contact in Mainz

Sylvia Dillmann
ed.gnireenigne-acc@nnamllid.s
+49 6131 218 25 78